Zuidermeerweg 74, Zuidermeer - Vastgoeddeal
verkocht

Vraagprijs
verkocht

Breng een bod uit

Daarna nemen wij contact met uw op.

Zuidermeerweg 74

Zuidermeer

Geïnteresseerd?

Wij helpen u graag!
Vraag informatie op Bekijk alle media (45)

Deel deze woning

Omschrijving

Wij starten de verkoop met een kijk moment op aanmelding op donderdag 13 november 2025 en vrijdag 14 november 2025. Aanmelden voor dit kijkmoment kan via de woningwebsite of het contactformulier op Funda.

--->>>check de exclusieve woningwebsite zuidermeerweg74.nl voor meer informatie<<<--

Gezinsvriendelijk wonen in Zuidermeer – ruimte, rust en mogelijkheden!
Welkom aan de Zuidermeerweg 74! Droom jij van een plek waar je je gegarandeerd genoeg ruimte hebt voor hobby’s, werkplek of extra gezinsuitbreiding? Zoek dan niet verder. Deze twee-onder-een-kapwoning uit 1993 heeft alles in huis om jouw gezin of toekomstplannen een vliegende start te geven. Alles is gebouwd in 1993, dus degelijke bouw en goede isolatie.

Laten we beginnen met het perceel. Want met 293 m² eigen grond, achtertuin en ruime voortuin met oprit voor meerdere auto’s. Achter het huis ligt een royale achtertuin, gelegen op het westen wat zorgt voor lekker wat uurtjes zon aan het einde van de dag. Ben je starter of heb je een jong gezin en zoek je ruimte om te groeien, je eerste klushuis, of wil je rustig beginnen en alles naar eigen wensen aanpassen? Dan is dit jouw kans!

Indeling
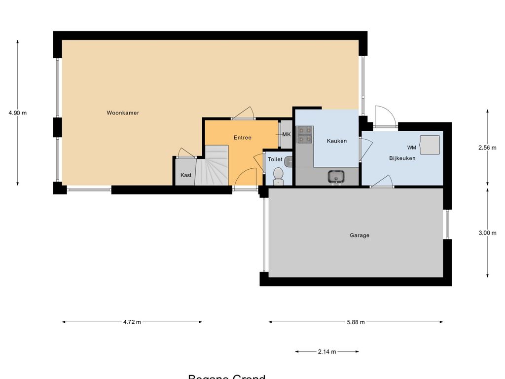
Zijentree met meterkast, tapopgang en toegang tot het toilet en woonkamer. Het toilet heeft een staande toiletpot en een fontein. De woonkamer is verrassend ruim en licht, en dankzij de open ligging aan de straatkant geniet je van lekker veel daglicht. Aangrenzend vind je de keuken, met uitzicht op de achtertuin. De keuken, in een hoekopstelling, in standaard en heeft geen inbouwapparatuur. De praktische bijkeuken heeft plaats voor een wasmachine/droger, een extra koelkast of gewoon lekker veel bergruimte. De aangebouwde garage is inpandig te bereiken via de bijkeuken. Ook bereik je de achtertuin via de bijkeuken. De achtertuin gelegen op het westen ligt aan het openbaar water en er is een terras en groen aanwezig.

Op de 1e verdieping vindt je drie slaapkamers en een badkamer. Aan de voorzijde van de woning bevinden zicht twee slaapkamers en de “master bedroom” is naast de badkamer, aan de achterzijde van de woning. De badkamer heeft een douche, staande toilet en wastafel. Alle ruimtes op deze verdieping zijn voorzien van een groot dakraam.

De 2e verdieping is een open ruimte maar een vierde slaapkamer is hier écht makkelijk te realiseren. Naast het trapgat bevindt de cv-ketel(bj2023) en de mechanische afzuig box. Er is een klein dakraam aanwezig wat voor de benodigde lichtinval zorgt.

- Twee-onder-een-kapwoning met inpandige garage
- Perceel van bijna 300 m² en tuinen aan voor- én achterzijde
- Eenvoudig afgewerkt, dus helemaal naar eigen wens te moderniseren
- Drie slaapkamers, een vierde slaapkamers mogelijk
- Eigen oprit, nooit parkeerproblemen
- Energielabel B, volledig geïsoleerd.
- Rustige woonwijk in Zuidermeer

Zie jij jezelf hier al wonen? Neem snel contact op en kom sfeerproeven op de Zuidermeerweg 74. Het perfecte (t)huis om jouw dromen waar te maken staat te wachten. Tot snel!
+ Lees de volledige omschrijving

Kenmerken

Overdracht

Status verkocht
Aanvaarding in overleg

Bouw

Soort woning woonhuis
Soort woonhuis eengezinswoning
Type woonhuis 2-onder-1-kapwoning
Aantal woonlagen 3
Kwaliteit eenvoudig
Bouwvorm bestaande bouw
Bouwjaar 1993
Bouwperiode 1991-2000
Onderhoud binnen redelijk
Onderhoud buiten redelijk
Dak samengesteld dak
Voorzieningen mechanische ventilatie en dakraam

Energie

Energielabel B
Verwarming c.v.-ketel
Warm water c.v.-ketel
C.V.-ketel gas gestookte combi-ketel uit 2023 van Intergas, eigendom

Oppervlakten en inhoud

Woonoppervlakte 94 m²
Perceeloppervlakte 293 m²
Inhoud 434 m³
Inpandigeruimte oppervlakte 32 m²

Indeling

Aantal kamers 5
Aantal slaapkamers 3

Buitenruimte

Ligging in woonwijk
Tuin achtertuin met een oppervlakte van 108 m² en is gelegen op het westen

Bergruimte

Garage aangebouwde stenen garage

Foto's

Zuidermeerweg 74, Zuidermeer
Zuidermeerweg 74, Zuidermeer
Zuidermeerweg 74, Zuidermeer
Zuidermeerweg 74, Zuidermeer
Zuidermeerweg 74, Zuidermeer
Zuidermeerweg 74, Zuidermeer
Zuidermeerweg 74, Zuidermeer
Zuidermeerweg 74, Zuidermeer
Zuidermeerweg 74, Zuidermeer
Zuidermeerweg 74, Zuidermeer
Zuidermeerweg 74, Zuidermeer
Zuidermeerweg 74, Zuidermeer
Zuidermeerweg 74, Zuidermeer
Zuidermeerweg 74, Zuidermeer
Zuidermeerweg 74, Zuidermeer
Zuidermeerweg 74, Zuidermeer
Zuidermeerweg 74, Zuidermeer
Zuidermeerweg 74, Zuidermeer
Zuidermeerweg 74, Zuidermeer
Zuidermeerweg 74, Zuidermeer
Zuidermeerweg 74, Zuidermeer
Zuidermeerweg 74, Zuidermeer
Zuidermeerweg 74, Zuidermeer
Zuidermeerweg 74, Zuidermeer
Zuidermeerweg 74, Zuidermeer
Zuidermeerweg 74, Zuidermeer
Zuidermeerweg 74, Zuidermeer
Zuidermeerweg 74, Zuidermeer
Zuidermeerweg 74, Zuidermeer
Zuidermeerweg 74, Zuidermeer
Zuidermeerweg 74, Zuidermeer
Zuidermeerweg 74, Zuidermeer
Zuidermeerweg 74, Zuidermeer
Zuidermeerweg 74, Zuidermeer
Zuidermeerweg 74, Zuidermeer
Zuidermeerweg 74, Zuidermeer

Plattegronden

Locatie

Contact opnemen

Deel via social media